
Отримати консультацію, замовити:
EUROTHERM CS solid-fuel boilers meant for heating buildings and dwelling, household municipal, and manufacturing purpose with up to 90°С heat carrier temperature, by using charcoal, wood material, wood refuse, fuel briquettes or pellets in the capacity of fuel; as well as high-temperature hot water with intermediate heat exchanger’s usage. Boilers can function at both open and closed open expansion tank systems, with both forced and natural coolant circulation.
Eurotherm CS solid-fuel boilers’ technical specifications
| Найменування параметру | Од. изм. | Найменування котла | ||||
|---|---|---|---|---|---|---|
| 12 CS | 18 CS | 25 CS | 37 CS | 50 CS | ||
| ТЕХНІЧНІ ХАРАКТЕРИСТИКИ: | ||||||
| 1. Номінальна потужність | кВт | 12 | 18 | 25 | 37 | 50 |
| 2. Витрати палива. Антрацит (6700 ккал/кг) | кг/год. | 1,7 | 2,6 | 3,6 | 5,4 | 7,3 |
| 3 Витрати палива. Кам’яне вугілля (5000 ккал/кг) | кг/год. | 2,0 | 3,0 | 4,2 | 6,2 | 8,3 |
| 4. Максимальний тиск в системі опалення | бар | 1,5 | ||||
| 5. Діапазон регулювання температури води | °С | 60-90 | ||||
| 6. Коефіцієнт корисної дії, не менш | % | 78 | ||||
| 7. Діапазон регулювання потужності | кВт | 6-12 | 9-18 | 12-25 | 18-37 | 25-50 |
| 8. Гідравлічний опір | мбар | 18 | 20 | 20 | 20 | 20 |
| 9. Температура продуктів згоряння на виході, не менш | °С | 140 | ||||
| 10. Час горіння одного завантаження (при потужності 50%) | год. | 6 | 8 | 10 | 10 | 10 |
| 11. Аеродинамічний опір | Па | 12 | 12 | 12 | 12 | 12 |
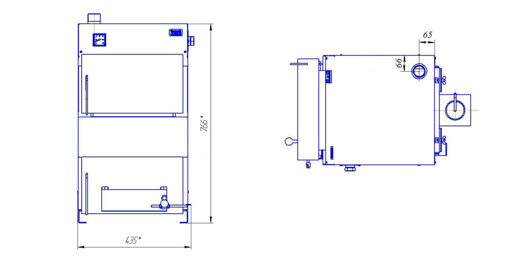
| 12. Габаритні розміри котла • глибина • ширина • висота | мм | 714 435 805 | 1054 435 805 | 967 560 960 | 1120 564 1102 | 1117 714 1182 |
| 13. Діаметр димоходу | мм | 120 | 160 | 188 | 188 | 188 |
| 14. Розміри камери згоряння • ширина • глибина • висота | мм | 300 300 390 | 600 300 390 | 444 400 450 | 594 400 590 | 594 550 662 |
| 15. Об’єм водяний порожнини | л | 30/p> | 41 | 44 | 65 | 75 |
| 16. Маса котла | кг | 90 | 131 | 170 | 264 | 334 |
Eurotherm CS solid-fuel boiler description
TECHNICAL SPECIFICATIONS OF THE FUEL
– Antracite: combustion heat – 6700÷8000 kcal/kg, moisture percentage – 4÷5 %, ash content – ≤ 25%, ignitable volatile compounds’ egress – ≤ 9%. Benefits: high content of carbon (up to 95%), burns in case of strong draft without flame, flavorless and smokeless; high combustion heat that increases the new fuel portion laying interval; does not bake. Shortcomings – ignites badly.
– Black coal: combustion heat – 5000÷6700 kcal/kg, moisture percentage – 6÷12%, ash content – 15÷33 of %, ignitable volatile compounds’ egress – 4÷10 of %. Benefits: ignites well. Shortcomings: is able to bake depending on brand of coal; high exit of ashes.
Coal fuel briquettes – 5500÷7500 kcal/kg, moisture percentage – 10÷12%, ash content – ≤ 17%, ignitable volatile compounds’ egress – ≤ 9%. Benefits: ignites well, burns without smoke and releases no carbon monoxide; low exit of ashes.
Allowable types of fuel and their specifications:
– Brown coal: combustion heat – 3000÷4100 kcal/kg, moisture percentage – 30÷45%, ash content – ≤ 45%, ignitable volatile compounds’ egress – ≥ 45%. Benefits: ignites well; does not bake. Shortcomings: exit gases’ high emission of gaseous and firm particles; low combustion heat; spontaneous ignition.
—Brown-coal briquette: combustion heat – 3900÷4500 kcal/kg, moisture percentage – ≤ 23,5%, ash content – ≤ 28%, ignitable volatile compounds’ egress – ≥ 50%. Benefits: ignites well; does not bake; resistance to spontaneous ignition in case of long-term storage. Shortcomings: exit gases’ high emission of gaseous and firm particles.
– Peat briquette: combustion heat – 5500÷5700 kcal/kg, moisture percentage – ≤ 16%, ash content – ≤ 16%, ignitable volatile compounds’ egress – ≥ 50%. Benefits: ignites well; does not bake; resistance to spontaneous ignition in case of long-term storage; low exit of ashes. Shortcomings: low combustion heat.
– Fuel briquette (biofuel): combustion heat – 3850÷5000 kcal/kg, moisture percentage – ≤ 12%, ash content – ≤ 16%, ignitable volatile compounds’ egress – ≥ 10%. Benefits: ignites well; does not bake; resistance to spontaneous ignition in case of long-term storage; low exit of ashes; contains no harmful volatiles. Shortcomings: low combustion heat.
COPPER’S DESIGN
EUROTHERM CS is a copper with fuel’s hand loading the design of which is based on the heat exchanger with the horizontal convection channel. Thanks to it, the copper reaches high performance in case of compact size. The convenient loading door is located at an angle. Big fuel burning surface. The copper sheathing heating temperature does not exceed 25 C due to effective thermal insulation use.
The EUROTHERM CS coppers use anthracite, brown and black coal, firewood, peat briquettes and milling peat as fuel. The copper’s heat exchanger is manufactured from 3 mm thick boiler steel.
The mechanical draft regulator connection is possible. The draft regulator operates air intake process for fuel combustion, depending on heat carrier temperature. Thereby, it protects the copper from overheating.


MAIN GEOMETRIC SIZES
