WMSP automatic loading solid-fuel boiler +

The WMSP mechanical fuel loading steel water-heating solid-fuel boiler is intended for heating buildings and constructions of residential, household and manufacture purpose with up to 90 °C heat carrier temperature, as well as for hot water supply when using intermediate heat exchanger.

The wood pellet is the main fuel in case of mechanical fuel loading; firewood, wood waste lumps – in case of manual fuel loading. Coppers can work both in opened, and closed heating systems, with the heat carrier’s forced circulation.

The copper has high thermotechnical rates of heating circuit, is supplied with safety devices and adjustment gear, is simple-to-operate. The copper meets the requirements of EN 303-5 and EN 30 European Norms, and manufactured according to ISO 9001/2000 standards.

Eurotherm WMSP solid-fuel boilers’ technical specifications

Найменування параметруОд. вим.Найменування котла
100 WMSP200 WMSP250 WMSP300 WMSP
1. Номінальна потужністькВт100200250300
2. Діапазон регулювання потужностікВт40…10090…200110…250130…300
3. Площа обігрівум²800200024002800
4. Вид палива – пелетимм∅8х12
5. Коефіцієнт корисної дії%90
6. Витрати палива.кг/год.25-3052-6064-7577-108
7. Ємність бункера палива (до 500 кг)м³0,91,11,41,4
8. Робочий тиск водибар3,0
9. Необхідне розрідження димоходуПа25-30
10. Температура теплоносія°С50-90
11. Температура відхідних газів°С155-175
12. Переріз димоходусм²582112014001400
13. Об’єм водяної сорочкил62099011801350
14. Маса котла (без механізму подачі і реторти)кг1320198023002520
15. Приєднувальні трубкиDN65808080
16. Габаритні розміри (без механізму подачі):
• висота, В
• глибина, Г
• ширина, Ш

мм

1703
1994
1077

2025
2100
1388

2076
2380
1388

2076
2380
1520
17. Габаритні розміри (з механізмом подачі):
• висота, В
• глибина, Г
• ширина, Ш

мм

1898
1994
1877

2260
2100
2388

2312
2380
2388

2312
2380
2560
18. Електрична потужність (~220 В)кВт0,40,40,40,4
19. Гідравлічний опіркПа13131414

Eurotherm WMSP solid-fuel boiler’s description

THE COPPER’S DESIGN

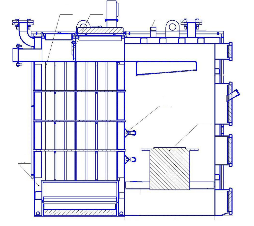
The main geometrical sizes of coppers are presented in fig. 1-4.
The copper’s design is presented in fig. 5.
The furnace camera is welded from sheet carbon 5 mm thick steel, isolated by 50 mm thick layer of mineral wool.

There is additional effective heating surface in convective part of a copper – in the form of fire-tube flights divided into two courses.
Fuel arrives in portions from the container with the help feed mechanism auger into furnace retort center. The burned-down fuel is dumped by the next fuel portion out of retort plate’s limits and gets
into ash pit box.

The hot gases formed in the firepot steam up the furnace, washing the register, get to the back pipe convective heat exchanger pos.12, giving the maximum thermal energy quantity on the way.
The special retort center design with fuel supply and ash rejection makes process automatic . Ashes are removed in the next moving fuel portion and dumped into ash pit box.
The copper is equipped with doors with the isolating plates from heat-resistant mineral wool.

Малюнок 1

Fig 5

1. Forced-draught fan. 2. Stack gases branch pipe. 3. Convective copper surfaces cleaning door. 4. Manual fuel loading door. 5. Copper ignition door. 6. Ash pit door. 7. Heat carrier entrance branch pipe. 8. Heat carrier exit branch pipe. 9. Convective bundle cleaning hatch. 10. Retort. 11. Manual loading air giving channels. 12. Convective heat exchanger. 13. Chimney wall ignition. 14. PSK connection branch pipes.

The boiler’s ignition door poz.5 serves for ignition, burning process monitoring, as well as combustion chamber’s internal part cleaning. The door is isolated by two layers of plates from heat-resistant mineral wool with 50 mm general thickness that prevents its excessive heating up. Besides, the door is provided with an additional heat reflection plate.

The same door serves for so-called “traditional method” (direct loading in the camera) boiler’s use in case of interruption in supply of the electric power or in case of failure of the feeder of fuel.
The cleaning door poz.3 serves for furnace’s top cleaning, the water-cooled register and soot removal. The door is isolated by heat-fast 50 mm thick mineral wool plate.

The loading door pos.4 serves for manual fuel loading (when using firewood as fuel). When using firewood as fuel, it is necessary to execute the following:
— to dismantle a retort pos.10;
— to disconnect the fuel feeding mechanism;
— to establish furnace bars;
— to turn on the forced-draught fan during ignition pos.1.

Attention! Forced-draught fan poses. is used at manual fuel loading only.
The outside case carries out function insulator for copper’s water case and thermal losses’ limitation maximum heat retention. It is executed from the steel sheets covered with powder enamel with high coefficient of corrosion resistance. Inside, between cases, there is an isolation from heat-resistant40-50 mm thick mineral wool.

The executive center consists of auger feed gear which is outside of boiler and furnace retort feed gear placed inside the boiler’s furnace camera.
The feeder consists of feed gear sleeve onto which, through special syndetic throat, laying fuel bunker is put. The bunker is manufactured of 2 mm thick welded steel sheets, and is covered, closed with two locks from above. On the feed gear’s sleeve there are emergency fuel unloading container opening closed by a cover.

There is an auger (a bowl with a scroll) placed in a sleeve, connected towards the two-level gear reducer with the single-phase ~ 230B tension engine via the condenser. The automatic thermal switch is built within the engine stator. The gear reducer’s turnover moment is postponed to a scroll’s bowl through overloads safety lock. A safety lock is the M5 class 5,8 long 60 mm bolt.
The engine feed gear is cyclically connected through control box. The gear reducer configuration is mutual engine, reduction and feed gear sleeve position, can be arbitrary (it depends on mounting complexity).

The air driven into retort burner is dosed by the quiet fan. The fan engine’s rotating speed of is smoothly regulated with control block by means of voltage alteration.

In the feed gear with a turnover retort the auger’s bowl is seated in furnace retort’s elbow bend and has one last turn in opposite direction (“claw”) serving for fuel’s popping up. The drive is transferred to a turnover retort burner by the prong yoke, which is found on the end of scroll’s bowl outside of an elbow bend.

The furnace retort center consists of cats iron plate-like firepot retort, the cast iron ejector gate with nozzles and cast iron elbow bend. The burner’s cast iron elements are placed in the protective steel case welded to rectangular collar which is attached by M10 bolts to the copper case through laying. From below the case is closed by a cover with laying.

The burner fuel moves through cast iron center with a scroll (auger).
The air into a retort moves in two ways: the top and lower ejector gate nozzles, as well as through slanting openings in the center (for fuel bunker smoke recycling prevention).
For uniform fuel burning It is necessary to provide leak-tightness with heat-resistant (≥1200oC) silicone between the steel case and furnace plate’s bottom (retort).

The M10 bolts on the retort’s case serve for centering plate concerning elbow bent. When performing this operation to carry out screwing up without excess effort until the bolt’s contact the flanged part of a plate, avoiding steel case’s deformation.12.

In rotary retort boiler the coal blows up in the top part. The mechanism turns cyclically, receiving serrations and prongs transmission, and thereby, loosens and enriches fuel with air by dumping ashes.
The retort needs to be necessarily condensed in the surface with burner protection casing joint place.
The burning process has to happen on the bump slightly above top snuffled burner ejector nozzles. The flame has to be bright, moderately equal and do not split at the tip of fire tales that testifies the excess of air.

The automatic supply solid-fuel burner is adapted for work with certain types of fuel. It is necessary to abide the instructions concerning parameters of the applied fuel strictly, for their non-compliance involves delivered equipment’s guarantee loss!

Scroll to Top

Оформити замовлення

    Ваше ім'я (обов'язково)

    Ваш e-mail (обов'язково)

    Тема

    Повідомлення