Котли парові Колві HS виготовляються в діапазоні номінальної паропродуктивності від 1 до 30 т / год. В залежності від навантаження та режиму роботи котел в поєднанні з поворотною камерою, що омивається, завдяки розвинутій теплообмінної поверхні і унікальним конструктивним рішенням, дозволяє досягти високої енергоефективності:
— без економайзера ККД досягає 91%;
— при застосуванні економайзера ККД складе не більше 95%
Для котлів використовуються пальники, що працюють на рідкому паливі або газі. Низький аеродинамічний опір котла дозволяє найбільш оптимально підібрати пальниковий пристрій з мінімальною потужністю двигуна вентилятора пальника. Широкий міжтрубний простір і великий об’єм води в котлі забезпечують найбільш оптимальний режим роботи котла у всьому діапазоні паропродуктивності.
Багаторядна схема розташування димогарних труб другого і третього ходу, виконання камер повороту димових газів дали змогу організувати великий топковий простір і збільшити площу поверхонь нагріву, що збільшує інтенсивність теплообміну, а відтак і коефіцієнт корисної дії котла. Таким чином, конструкція котла, в якій використані передові і надійні технічні рішення, а також висока якість виготовлення, забезпечують виняткові характеристики парового котла: високу продуктивність та якість пара, високий коефіцієнт корисної дії, безпеку і надійність роботи, тривалий термін служби.

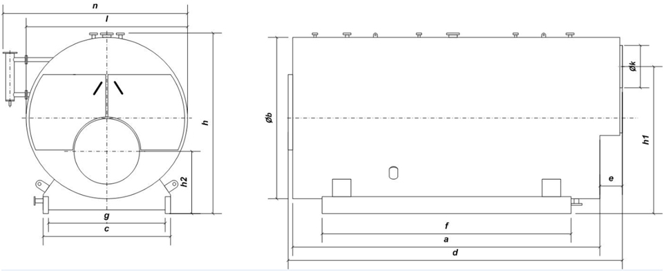
ЗАГАЛЬНИЙ ВИГЛЯД КОТЛА

ТЕХНИЧНІ ХАРАКТЕРИСТИКИ
| Найменування параметру | Од. вим. | Найменування котла | |||||
|---|---|---|---|---|---|---|---|
| Колві HS 400 | Колві HS 500 | Колві HS 600 | Колві HS 700 | Колві HS 850 | Колві HS 1000 | ||
| Паропродуктивність | кг/год | 4000 | 5000 | 6000 | 7000 | 8500 | 10000 |
| Теплова потужність | кВт | 2619 | 3273 | 3928 | 4583 | 5565 | 6547 |
| Витрати газу | м.куб/год | 306 | 382 | 459 | 535 | 650 | 765 |
| Об’єм води | м.куб | 9,41 | 11,77 | 12,80 | 14,53 | 16,63 | 18,16 |
| a | мм | 4635 | 5000 | 5072 | 5479 | 5833 | 6453 |
| b | мм | 2396 | 2590 | 2698 | 2798 | 2970 | 3040 |
| c | мм | 2000 | 2000 | 2050 | 2050 | 2360 | 2400 |
| d | мм | 5097 | 5477 | 5538 | 5842 | 5946 | 6299 |
| e | мм | 380 | 380 | 380 | 380 | 380 | 380 |
| f | мм | 3445 | 3770 | 3840 | 4226 | 4280 | 4690 |
| g | мм | 1800 | 1800 | 1850 | 1850 | 2160 | 2200 |
| h | мм | 2735 | 2890 | 3020 | 3120 | 3336 | 3401 |