Парові котли серії RS виробляються в діапазоні номінальної паропродуктивності від 0,25 до 5,5 т / год.
Котел може бути укомплектовано будь ким пальником, що працює на звичайних видах рідкого чи газоподібного палива. Пальник встановлюється на шарнірних дверцятах котла, що значно спрощує як керування пальником, так і самим котлом, а також спрощує технічне обслуговування без його демонтажу.
Котли оснащені усім необхідним обладнанням для безпечної роботи в автономному режимі, зокрема насосні групи, групи безпеки по тиску, температурі, рівню води в котлі. Також Котли оснащені електронною панеллю керування настінного монтажу.
ОСНОВНІ ПЕРЕВАГИ
- Зовнішня ізоляція котла з високоякісного алюмінієвого листа.
- Працюють на газоподібному та рідкому паливі, виконані за технологією проходження продуктів згоряння, з концентричним розташуванням димогарних труб.
- Високоефективна теплоізоляція забезпечує високу теплоакумулюючу спроможність та значне зменшення втрати тепла в навколишнє середовище.
- Можливість використання будь-якого типу пальника за рахунок перехідного фланцю і конструкції футеровки.
- Економія палива за рахунок високого ККД

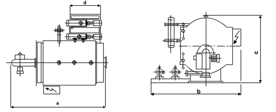
ЗАГАЛЬНИЙ ВИД КОТЛА

ТЕХНИЧНІ ХАРАКТЕРИСТИКИ
| RS | 25 | 32 | 40 | 50 | 65 | 80 | 100 | |
|---|---|---|---|---|---|---|---|---|
| Паропродуктивність | кг/год | 250 | 320 | 400 | 500 | 650 | 800 | 1000 |
| Корисна потужність | кВт | 174 | 223 | 279 | 349 | 456 | 558 | 698 |
| Потужність топки | кВт | 191 | 245 | 307 | 384 | 498 | 613 | 767 |
| ККД при номінальній потужності | % | 91 | 91 | 91 | 91 | 91 | 91 | 91 |
| Максимальна температура | °С | 191 | 191 | 191 | 191 | 191 | 191 | 191 |
| Максимальний тиск | бар | 12 | 12 | 12 | 12 | 12 | 12 | 12 |
| Аеродинамічний опір топки | мбар | 1,2 | 1,5 | 2,5 | 2,5 | 3 | 3,5 | 5 |
| Діаметр топки | мм | 450 | 450 | 500 | 500 | 550 | 550 | 600 |
| Довжина топки | мм | 1000 | 1000 | 1200 | 1200 | 1360 | 1360 | 1650 |
| Довжина голови згоряння пальники | мм | 320 | 320 | 320 | 320 | 320 | 320 | 320 |
| Висота | мм | 1500 | 1500 | 1585 | 1585 | 1688 | 1688 | 1751 |
| Ширина (без обвісу) | мм | 1170 | 1170 | 1240 | 1240 | 1320 | 1320 | 1400 |
| Довжина | мм | 1863 | 1863 | 2183 | 2183 | 2388 | 2388 | 2573 |
| Діаметр газоходу | мм | 250 | 250 | 250 | 250 | 300 | 300 | 350 |
| Маса без води | кг | 1194 | 1194 | 1568 | 1586 | 1861 | 1861 | 2146 |
| Об’єм води | л | 510 | 510 | 750 | 750 | 930 | 930 | 1150 |