Твердопаливний котел WMSP з автоматичним завантаженням

Отримати консультацію, замовити:

Твердопаливний котел WMSP сталевий водогрійний з механічним завантаженням палива призначений для опалення будинків та споруд житлового, комунально-побутового і виробничого призначення з температурою теплоносія до 90°С, та для гарячого водопостачання при використанні проміжного теплообмінника.

Основним паливом є пелети з деревини — при механічному завантаженні палива; дрова, крупнокускові відходи деревини — при ручному завантаженні палива. Котли можуть працювати як у відкритих, так і в закритих системах опалення, з примусовою циркуляцією теплоносія.

Котел має високі теплотехнічні покажчики контуру опалення, обладнаний пристроями безпеки та керування, простий в експлуатації. Котел відповідає вимогам Європейських Норм EN 303-5 і EN 30, і виготовлений за нормативами ISO 9001/2000.

Технічні характеристики твердопаливних котлів Eurotherm WMSP

Найменування параметруОд. вим.Найменування котла
100 WMSP200 WMSP250 WMSP300 WMSP
1. Номінальна потужністькВт100200250300
2. Діапазон регулювання потужностікВт40…10090…200110…250130…300
3. Площа обігрівум²800200024002800
4. Вид палива – пелетимм∅8х12
5. Коефіцієнт корисної дії%90
6. Витрати палива.кг/год.25-3052-6064-7577-108
7. Ємність бункера палива (до 500 кг)м³0,91,11,41,4
8. Робочий тиск водибар3,0
9. Необхідне розрідження димоходуПа25-30
10. Температура теплоносія°С50-90
11. Температура відхідних газів°С155-175
12. Переріз димоходусм²582112014001400
13. Об’єм водяної сорочкил62099011801350
14. Маса котла (без механізму подачі і реторти)кг1320198023002520
15. Приєднувальні трубкиDN65808080
16. Габаритні розміри (без механізму подачі):
• висота, В
• глибина, Г
• ширина, Ш

мм

1703
1994
1077

2025
2100
1388

2076
2380
1388

2076
2380
1520
17. Габаритні розміри (з механізмом подачі):
• висота, В
• глибина, Г
• ширина, Ш

мм

1898
1994
1877

2260
2100
2388

2312
2380
2388

2312
2380
2560
18. Електрична потужність (~220 В)кВт0,40,40,40,4
19. Гідравлічний опіркПа13131414

Опис твердопаливного котла Eurotherm WMSP

КОНСТРУКЦІЯ КОТЛА

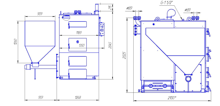
Основні геометричні розміри котлів представлені на мал. 1-4.

Конструкція котла представлена на мал. 5.

Камера згоряння зварена з листової вуглецевої сталі товщиною 5 мм, ізольована шаром мінеральної вати товщиною 50 мм.

В конвективній частини котла розташована додаткова ефективна поверхня нагріву — у вигляді ряду димогарних труб, відокремлених на два ходи.

Паливо надходить порціями з контейнера за допомогою шнека механізму подачі до вузол топкової реторти. Згоріле паливо скидається черговою порцією палива за межі тарілки реторти і потрапляє в ящик зольника.

Гарячі гази, що утворюються в топці здіймаються по топці, омиваючи регістр, потрапляють в задній трубний конвективний теплообмінник поз.12, по шляху віддають максимальну кількість теплової енергії.

Особлива конструкція вузла реторти з подачею палива та відведенням попелу робить процес автоматичним. Згоріле паливо скидається черговою порцією палива за межі тарілки реторти і потрапляє в контейнер зольника.

Котел облаштований дверцятами з ізолюючими плитами з термостійкої мінеральної вати.

Малюнок 1

Малюнок 5

1. Дуттєвий вентилятор. 2. Патрубок вихідних газів. 3. Дверцята для очищення конвективних поверхонь котла. 4. Завантажувальні дверцята при ручному завантаженні палива. 5. Дверцята розпалу котла. 6. Дверцята зольника. 7. Патрубок входу теплоносія. 8. Патрубок виходу теплоносія. 9. Люк для чистки конвективного пучка. 10. Реторта. 11. Канали повітроводів подачі при ручному завантаженні. 12. Конвективний теплообмінник. 13. Шибер розпалу. 14. Патрубки підключення ПСК.

Дверцята розпалу котла поз.5 служать для розпалювання, контролю процесу горіння, а також для очищення внутрішньої частини камери згоряння. Дверцята ізольовані двома шарами плит з термостійкої мінеральної вати загальною товщиною 50 мм, що запобігає їх надмірного нагріву. Крім цього, дверцята забезпечена додатковою жаровідбивною пластиною.

Ці ж дверцята служать для використання котла так званим «традиційним методом» (прямого завантаження в камеру) у разі припинення подачі електропостачання або у разі аварії механізму подачі палива.

Дверцята для чищення поз.3 служать для очищення верхньої частини топки, водоохолоджуваного регістра та видалення сажі. Дверцята ізольовані плитою із термостійкої мінеральної вати товщиною 50 мм.

Завантажувальні дверцята поз.4 служать для ручного завантаження палива (при використанні в якості палива — дров). При використанні у якості палива дров, необхідно виконати наступні:

— демонтувати реторту поз.10;

— від’єднати механізм подачі палива;

— встановити колосники;

— під час розпалу, включити дуттєвий вентилятор поз.1.

Увага! Дуттєвий вентилятор поз.1 використовується тільки при ручному завантаженні палива.

Зовнішній корпус здійснює функцію ізолятора для максимального утримання тепла всередині водяного корпусу котла та обмеження теплових втрат. Виконаний зі сталевих листів, вкритих порошковою емаллю з високим коефіцієнтом корозійної стійкості. Всередині, між корпусами, знаходиться ізоляція із термостійкої мінеральної вати товщиною 40-50 мм.

Виконавчий вузол складається зі шнекового механізму подачі, що знаходиться зовні котла та вузла топкової реторти, розташованого всередині камери згоряння котла.

Механізм подачі складається з рукава механізму подачі, на який через спеціальну з’єднувальну горловину з прокладкою встановлено паливний бункер. Бункер виготовлено із зварених сталевих листів товщиною 2 мм і зверху накрито кришкою, що закривається двома замками. На горловині рукава механізму подачі знаходиться отвір для аварійної вивантаження палива з контейнера, закритий кришкою.

В рукаві розміщено шнек (вал з равликом), приєднаний до двохступенчатого моторедуктору з однофазним двигуном з напругою ~ 230В через конденсатор. У статор двигуна вбудовано автоматичний термовимикач. Обертовий момент моторедуктора переноситься на вал равлики через запобіжник перевантажень. Запобіжником є болт М5 класу 5,8 довжиною 60 м

Двигун механізму подачі циклічно підключено через блок керування. Конфігурація моторедуктора — відносне розташування двигуна, редукції та рукава механізму подачі, — може бути довільною (залежно від складності монтажу).

Повітря, що подається до пальника реторти, дозується малошумним вентилятором. Частота обертання двигуна вентилятора плавно регулюється блоком керування за допомогою зміни напруги.

У механізмі подачі з оборотною ретортою вал шнека встановлено в коліно топкової реторти і має один останній оберт в протилежному напрямку («кіготь»), призначений для виштовхування палива вгору.

Вузол топкової реторти складається з чавунної тарілкоподібні топки-реторти, чавунної ежекторної заслонки з соплами і чавунного коліна. Чавунні елементи пальника розміщені в захисному сталевому корпусі, що приварений до прямокутного коміру, який приєднаний болтами М10 до корпусу котла через прокладку. Знизу корпус закрито кришкою з прокладкою.

Паливо до пальника подається равликом (шнеком) через чавунне коліно. Повітря до реторти подається двома шляхами: верхніми та нижніми соплами ежекторної заслонки, а також через криві отвори в коліні (для запобігання повернення диму в паливний бункер).

Для рівномірного горіння палива необхідно забезпечити герметичність між сталевим корпусом та  дном топкової тарілки (реторти) термостійким (≥1200oC) силіконом.

Болти М10 на корпусі реторти призначені для центрування тарілки відносно коліна. При виконанні цієї операції загвинчування виконувати без надмірного зусилля до моменту дотику болта про розвальцьованої частини тарілки, уникаючи деформації сталевого корпусу.12

У пальнику з поворотною ретортою вугілля перегоряє в верхній частині. Механізм циклічно повертається, отримуючи привід на зубці від вилки, і тим самим, розпушує і збагачує паливо повітрям, скидаючи попіл. Реторту необхідно обов’язково ущільнювати в місці стику поверхні з кожухом захисту пальника.

Процес горіння повинен відбуватися трохи вище верхніх сопел ежектора пальника. Полум’я повинно бути ясним, в міру рівним і не розщеплюватися наприкінці, що свідчить про надлишок повітря.

Пальник з автоматичною подачею твердого палива пристосовано для роботи з певними сортами палива. Слід строго дотримуватися вказівок, щодо параметрів палива що застосовується, їх недотримання призводить до втрати гарантії на поставлене обладнання!

Прокрутка до верху

Оформити замовлення

    Ваше ім'я (обов'язково)

    Ваш e-mail (обов'язково)

    Тема

    Повідомлення